Objektnummer: 2601.50.1

FERIENWOHNUNG, 3-Zimmer (Neubau/Erstbezug) in Ailingen

Hauptstr. 50, 88048 Ailingen

1.562,97 €
Kaltmiete
94,81 m²
Fläche
3
Zimmer

Merkmale

Wohnungs­kategorie
Sou­ter­rain
Frei ab
01.05.26 bzw. n. Fertigstellung oder Vereinbarung
Kaltmiete
1.562,97 €
Betriebs­kosten­voraus­zahlung
237,03 €
Heiz­kos­ten
in Betriebs­kosten­voraus­zahlung enthalten
Gesamtmiete
1.800,00 €
Bau­jahr
2026
Ob­jekt­zu­stand
Erst­be­zug

Details

Wohn­flä­che
94,81 m²
Zim­mer­zahl
3
An­zahl Schlaf­zim­mer
3
An­zahl Ba­de­zim­mer
1
Eta­genan­zahl
2
Eta­ge
-1
Aufzug
Ja

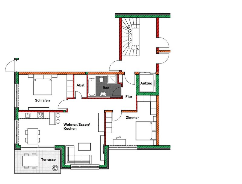
Grundriss

Objektbeschreibung

Im beschaulichen Ailingen, einem direkt an Friedrichshafen am Bodensee angrenzenden Vorort, liegt dieser luxoriöse Neubau mit 10 Mietwohnungen, davon 3 pro Etage und 1 Ferienwohnung im Untergeschoss.
Beheizt wird das Gebäude mit einer hochmodernen Wärmepumpe.

Lage

Das Gebäude liegt im höher gelegenen, nördlichen Teil von Ailingen.
Ailingen ist sehr gut gelegen durch seine Nähe zu Friedrichshafen und dessen Flughafen sowie einem großen Einkaufszentrum. Es verfügt über eine hervorragende Infrastruktur mit verschiedenen Einkaufsmöglichkeiten für den täglich Gebrauch, Schule, Kindergarten und Ärzte.
Abgerundet wird das Angebot durch eine breites Freizeitangebot, Vereinsleben, wie auch diverse Museen in Friedrichshafen, Veranstaltungen wie das jährliche Häfler Seehasenfest und Kulturufer aber auch durch diverse Tagesausflugsmöglichkeiten auf dem Bodensee mit Passagierschiffen.

Ausstattung

Die großzügig geschnittene 3-Zimmer-Ferienwohnung verfügt über massive Parkettfußböden mit Fußbodenheizung, eines modernen, offenen Küchenbereichs mit Einbauküche, einem Badezimmer mit Wanne und Dusche incl. WC.
Außerdem steht ein separater Kellerraum mit eigenem Waschmaschinenanschluss zur Verfügung.
Bodentiefe Fenster sorgen für lichtdurchflutete Wohnräume. Sämtliche Fenster können zudem mit elektrischen Rollläden abgedunkelt werden.
Ferner ist die Wohnung mit automatischen Belüftungen ausgestattet, um auch hier ein optimales Wohnklima zu fördern.
Ein Glasfaseranschluss über die Fa. Teledata gehört ebenfalls zur Standardausstattung der Wohnung.
Die Wohnung wird außerdem komplett möbliert und voll ausgestattet zur Verfügung gestellt.

Umgebungskarte

Sonst­ige An­ga­ben

Ein Mietvertrag über die Ferienwohnung wird immer mindestens für 4 Wochen abgeschlossen. Eine Vertragsverlängerung ist selbstverständlich möglich.
Die Nebenkosten werden pauschal berechnet (Inclusivmiete) und werden daher nicht separat abgerechnet.
Die Stellplatzmiete in Höhe von € 40,00 ist nicht in der Gesamtmiete für die Wohnung enthalten.

Alle gemachten Angaben sind unverbindlich und stellen keine Zusicherung auf Vollständigkeit und
Richtigkeit dar. Änderungen jeglicher Art auch wegen Irrtümer, Übertragungsfehler etc. bleiben vorbehalten.

Ihr Ansprechpartner

Klaus Baumann

Wohnungsbewerbung für diese Wohnung.

Eine Wohnungsvergabe kann nur bei positiver SCHUFA - Auskunft erfolgen. Unvollständig ausgefüllte Bewerbungsanträge bleiben unberücksichtigt. Ihre Angaben sind Grundlage für den Abschluss eines Mietvertrages. Unrichtige bzw. unvollständige Angaben können zur Anfechtung oder fristgerechten bzw. fristlosen Kündigung eines abgeschlossenen Mietvertrages führen!

Die Gültigkeitsdauer der Wohnungsbewerbung beträgt 3 Monate ab Eingangsdatum. Sollten Sie innerhalb dieser Zeit keine Nachricht von uns erhalten, können wir Ihnen leider keine Ihren Wünschen entsprechende Mietwohnung anbieten. Eine Wohnungsvergabe erfolgt nach internen, objektiven Vergabekriterien. Ein Rechtsanspruch gegenüber der Genossenschaft auf Wohnungszuteilung entsteht durch Abgabe dieser Bewerbung nicht.

2601.50.1 2601.50.1 FERIENWOHNUNG, 3-Zimmer (Neubau/Erstbezug) in Ailingen 1524